Проекты
Наши работы
Комплектация
Клиентам
Контакты
Свой проект на расчёт
8 (963) 523 86 66
+7 (3852) 61 61 64
Проекты
Наши работы
Клиентам
Комплектация
Контакты
+7 (3852) 61 61 64
г. Барнаул,
пр. Строителей 45, офис 446
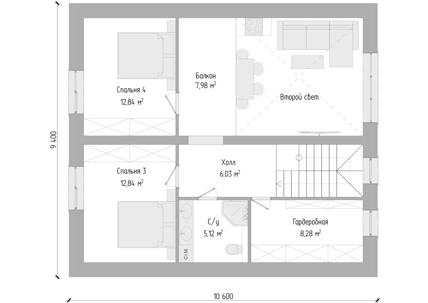
ПЛАНИРОВКА И КОНФИГУРАЦИЯ
ИС - 128
10.6 х 9.4 м.
Добро пожаловать в дом вашей мечты – воплощение элегантности и современного комфорта. Этот двухэтажный особняк, спроектированный с непревзойденным вниманием к деталям, предлагает уникальное сочетание простора, света и функциональности, идеально подходящее для динамичной семейной жизни.

Сердцем дома служит просторная кухня-гостиная, которая является центральным элементом интерьера, подчеркивая его роскошность. Это место, где современные кулинарные технологии сливаются с уютной атмосферой, приглашая к теплым семейным вечерам и оживленным дружеским встречам. Здесь, у большого обеденного стола, будут рождаться самые теплые воспоминания.

Особое очарование дому придает второй свет, который наполняет пространство естественным освещением и создает ощущение воздушности и безграничности. 

Четыре прекрасно оборудованные спальни, предлагают уединение и покой для каждого члена семьи. Каждая комната спроектирована с учетом индивидуальных потребностей, обеспечивая комфортный отдых и личное пространство.

Довершает картину продуманная гардеробная комната на втором этаже, призванная внести порядок в хранение вещей и облегчить утренние сборы. Это пространство, где каждая вещь найдет свое место, а заботы о порядке отойдут на второй план.
Этот дом – не просто стены, а сцена для вашей идеальной жизни.
2 санузла
128 м2
Кухня - гостиная
4 спальни
Получить консультацию
Проект "ИС - 128"
Оставьте свой телефон, мы перезвоним и подробно проконсультируем!
ВАРИАНТЫ ОТДЕЛКИ ФАСАДА
  Кирпич белый/рваный
Штукатурка/ клинкерный кирпич
  Штукатурка/дерево/камень
/ 4
/ 4
/ 4

ВАРИАНТЫ ОТДЕЛКИ ФАСАДА

Кирпич белый/рваный
Штукатурка/
клинкерный кирпич  
Штукатурка/дерево/камень
КОНТАКТЫ
+7 (963) 523 86 66
+7 (3852) 61 61 64
int.stroy.brn@mail.ru
Барнаул, пр. Строителей 45, офис 446